West 36th Apartments
PROJECT OVERVIEW
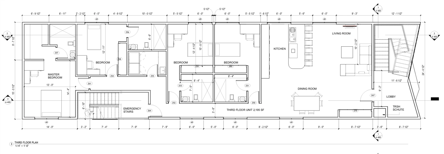
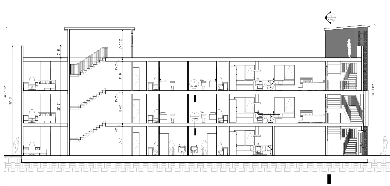
This new multifamily development in Los Angeles is a thoughtfully designed three-story project featuring three spacious units, each crafted for modern urban living. The contemporary design includes open floor plans, high ceilings, and large windows that bring in natural light, creating a bright and inviting atmosphere. Each unit is equipped with high-end finishes, sleek kitchens, and well-appointed bathrooms, providing a luxurious yet functional living experience. With its efficient use of space and prime location, this multifamily project is a valuable addition to the Los Angeles housing market, catering to families, professionals, or shared living arrangements in a dynamic urban setting.
IMAGE GALLERY
Checkout Our Other Masterpieces
Explore other stunning projects by Okla Construction that blend modern design with sustainable practices.
Frequently Asked Questions
Can’t find the answer you’re looking for? Please contact with our customer service.
Can’t find the answer you’re looking for? Please contact with our customer service.
Ready to build Smarter?
Book your free consultation today and discover how quickly we can turn your ideas into permits and long-term property value. Our team is here to guide you from the first sketch to final approval.




