The Otis
PROJECT OVERVIEW
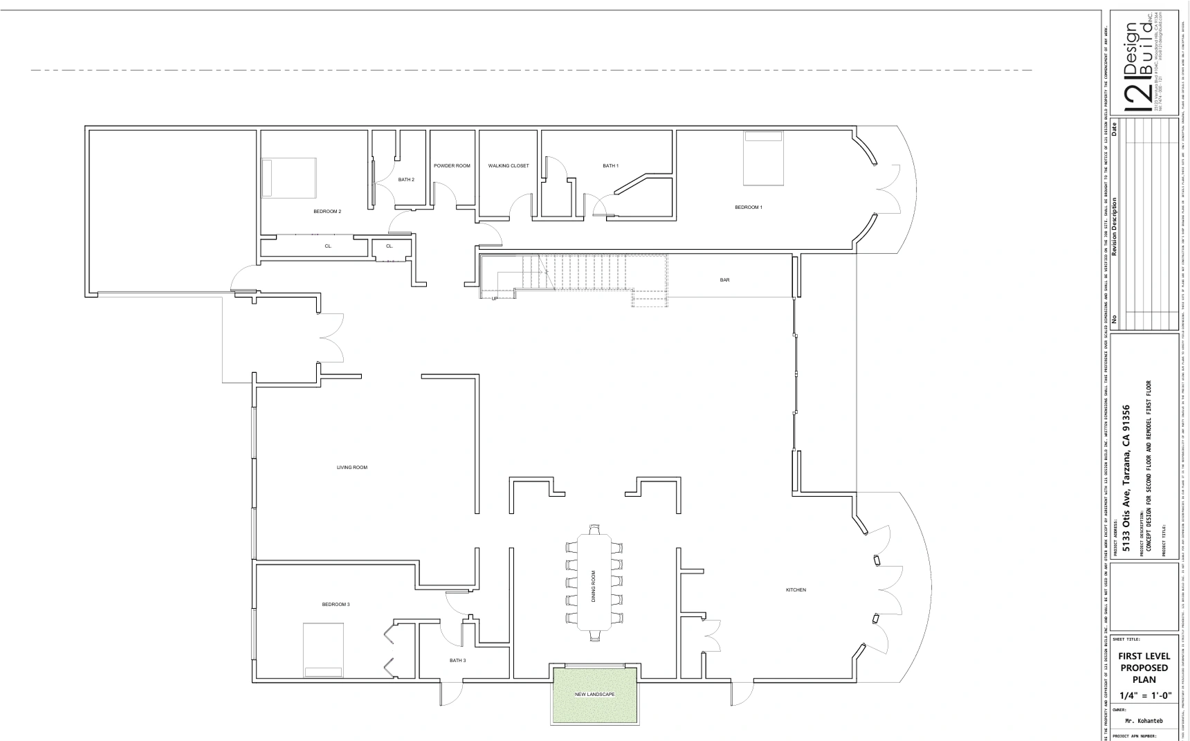
The project at 5133 Otis Ave in Tarzana is a carefully planned addition to an existing single-family residence, expanding it into a spacious and modern home. This renovation enhances the property by thoughtfully integrating with the original structure, maintaining architectural harmony while introducing contemporary features such as open-concept living spaces, large windows for natural light, and upgraded finishes. By expanding the home's footprint, this project provides increased living space for a growing family or multi-generational living while adding significant value to the property in a desirable Tarzana neighborhood.
IMAGE GALLERY
Checkout Our Other Masterpieces
Explore other stunning projects by Okla Construction that blend modern design with sustainable practices.
Frequently Asked Questions
Can’t find the answer you’re looking for? Please contact with our customer service.
Can’t find the answer you’re looking for? Please contact with our customer service.
Ready to build Smarter?
Book your free consultation today and discover how quickly we can turn your ideas into permits and long-term property value. Our team is here to guide you from the first sketch to final approval.






