Lindamere ADU
PROJECT OVERVIEW
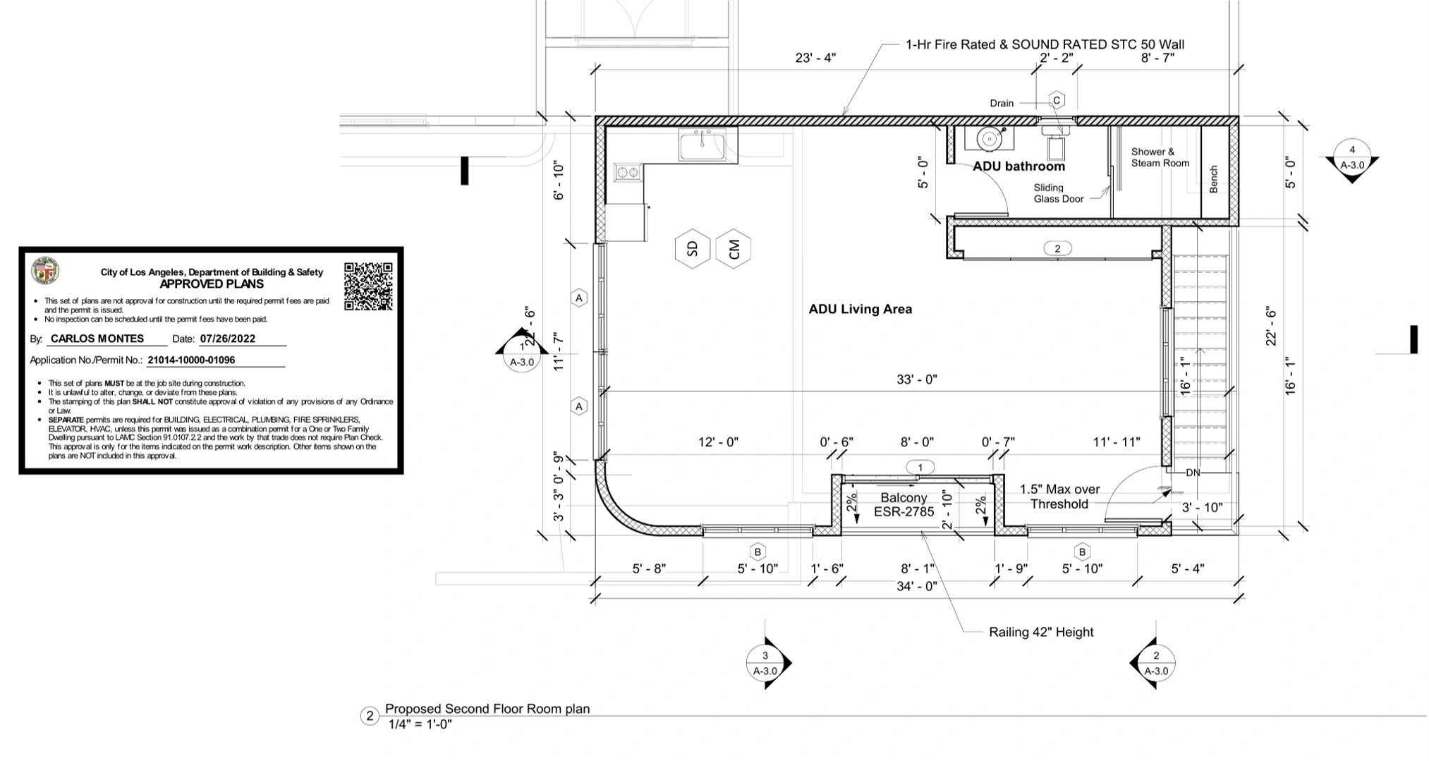
The project at 10651 Lindamere in Bel-Air includes a private ADU at 10653 Lindamere, enhancing the property's versatility. Designed for guests, extended family, or a private workspace, the self-contained unit features large windows, sleek finishes, and an efficient layout. Seamlessly blending with the main home and offering views of the landscaped surroundings, the ADU adds both functionality and charm to this luxurious retreat.
IMAGE GALLERY
Checkout Our Other Masterpieces
Explore other stunning projects by Okla Construction that blend modern design with sustainable practices.
Frequently Asked Questions
Can’t find the answer you’re looking for? Please contact with our customer service.
Can’t find the answer you’re looking for? Please contact with our customer service.
Ready to build Smarter?
Book your free consultation today and discover how quickly we can turn your ideas into permits and long-term property value. Our team is here to guide you from the first sketch to final approval.



