Grand View
PROJECT OVERVIEW
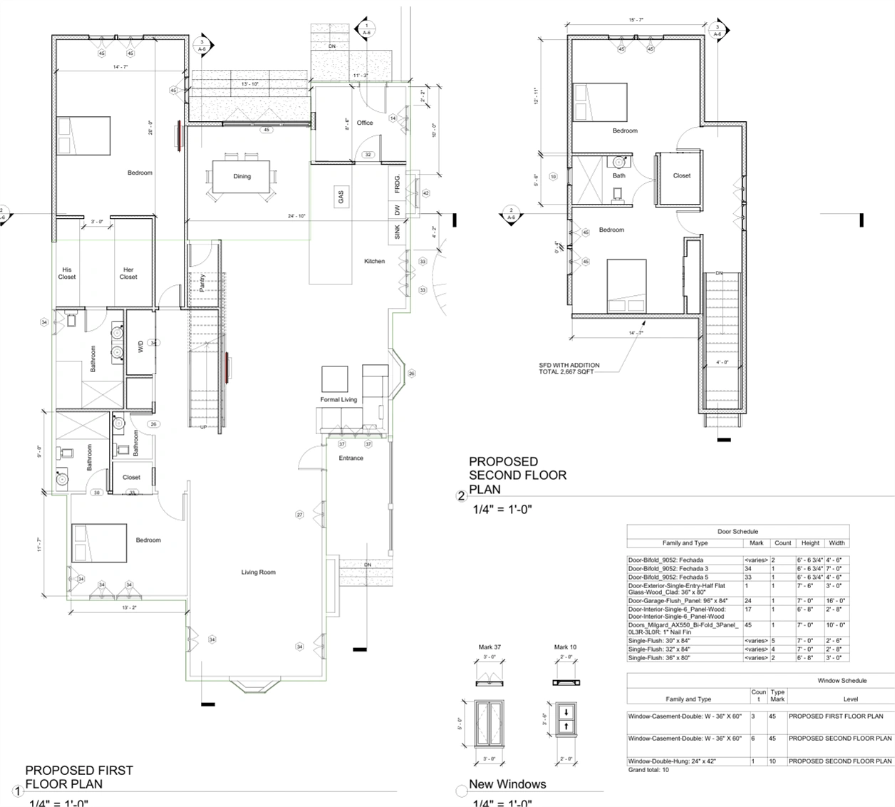
At 1730 Grandview in Glendale, a thoughtful 1,100-square-foot addition enhances an existing home in a historic neighborhood while meeting challenging historical preservation requirements. The design carefully integrates modern living spaces with the original structure, ensuring compliance with strict guidelines to maintain the area's architectural heritage. Materials, finishes, and design details were meticulously selected to blend seamlessly with the historic character of the home, balancing functionality with preservation. This addition not only provides increased comfort and space but also respects and celebrates the charm of the neighborhood's history.
IMAGE GALLERY
Checkout Our Other Masterpieces
Explore other stunning projects by Okla Construction that blend modern design with sustainable practices.
Frequently Asked Questions
Can’t find the answer you’re looking for? Please contact with our customer service.
Can’t find the answer you’re looking for? Please contact with our customer service.
Ready to build Smarter?
Book your free consultation today and discover how quickly we can turn your ideas into permits and long-term property value. Our team is here to guide you from the first sketch to final approval.






