The Crescent
PROJECT OVERVIEW
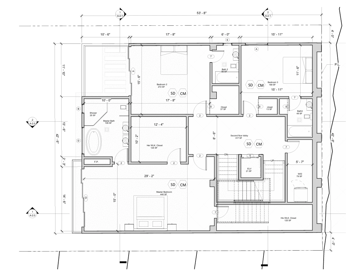
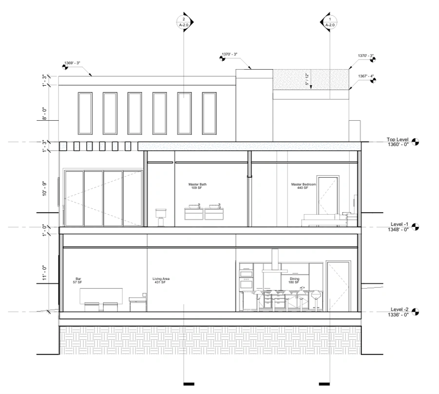
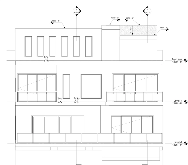
Nestled in the iconic hills of Hollywood, the design project at 8968-8969 Crescent redefines hillside living with its blend of modern elegance and breathtaking views. This meticulously crafted residence features a large lounge balcony that serves as the perfect vantage point for taking in the sweeping vistas of the city below. Complementing the outdoor luxury is a sleek jacuzzi, thoughtfully positioned to maximize relaxation while embracing the serene surroundings. The design emphasizes an open and fluid connection between indoor and outdoor spaces, ensuring the home captures the essence of California living. With its striking architecture and focus on comfort, this hillside retreat is an elevated escape in the heart of Hollywood.
IMAGE GALLERY
Checkout Our Other Masterpieces
Explore other stunning projects by Okla Construction that blend modern design with sustainable practices.
Frequently Asked Questions
Can’t find the answer you’re looking for? Please contact with our customer service.
Can’t find the answer you’re looking for? Please contact with our customer service.
Ready to build Smarter?
Book your free consultation today and discover how quickly we can turn your ideas into permits and long-term property value. Our team is here to guide you from the first sketch to final approval.









